PRODUCE-PROCESS
エクステリア設計のご依頼にあたり:プランニングまでの流れ

EXTERIOR |Public-Element
「外観デザイン」ブランドバリューの向上を目指します
ファサード.エントランス.カースペース.アプローチ.デザインパーツ 等
わたしたちは主に接道部から誰からも眺め見える住まいの顔とした構え「エクステリア」を主役的要素の建築を含めた『外観デザイン』として総合的に企画提案しています。外構の印象は単なる囲いというものから意匠性や装飾演出性が欠かせなくなり建物のこだわりを際立てるステイタス要素として注目されるようになりました。住まいの価値を引き出すために欠かせないエレメントであるからこそ高い意識と培った知識と実績で他にないデザインを考案し装飾し演出提供していきます。
EX-PLANNING

GARDEN |Private-Element
「景観デザイン」ライフスタイルの向上を目指します
ピクチャーウィンドウ.セカンドリビング.ランドスケープ.ガーデニング 等
わたしたちは住宅のなかで自然環境を操作し季節の訪れを感じ取り和み楽しむ滞在空間「ガーデン」を生活環境要素のインテリアと繋ぎ『景観デザイン』として企画提案しています。庭の印象は眺め見る景色を演じる植栽主体構成からライフスタイルの変化に伴い利用価値の高い屋外の部屋作りとして注目されています。住人専用の特別空間として設えた癒しの空間は季節によって変化する表情を持つ唯一無二の格別な時感を提供するものだからこそ窓先の景色を演出提供していきます。
GD-PLANNING
" V I S U A L & CONTENTS "
EXTERIOR & GARDEN DESIGN PRODUCE VISION|PLANNING MAIN THEME
いつの時代も人は「美しい・綺麗・可愛い・格好良い・素敵」などのビジュアル的要因と「居心地・佇み・癒し・和み・楽しみ」などのメンタル的要因を趣味趣向に相違があるにせよそれぞれ組み合わせながら自身のベクトルにあったそれを希望し叶うものと叶えるものに興味が惹かれるからこそ関わる全てに対し『デザインする意味と理想』を常に追求することが大切である。
" V I S U A L & CONTENTS "
EXTERIOR & GARDEN DESIGN PRODUCE VISION
PLANNING MAIN THEME
いつの時代も人は「美しい・綺麗・可愛い・格好良い・素敵」などのビジュアル的要因と「居心地・佇み・癒し・和み・楽しみ」などのメンタル的要因を趣味趣向に相違があるにせよそれぞれ組み合わせながら自身のベクトルにあったそれを希望し叶うものと叶えるものに興味が惹かれるからこそ関わる全てに対し『デザインする意味と理想』を常に追求することが大切である。
GF-PLANNING STRONG POINT
外部空間設計のプランニング重点ポイント
KATA を想像&創造する
外部空間設計は「デザインパーツ=L型フォーム」で演じ魅せる
造形美の探究と追求で描くカタチの変化によって様々な空間を表し楽しむ
外部空間設計はスペースデザイン内に要する造形と植生からなる様々なデザインパーツの集合体で表されるものです。造形は壁面・床面・上空面から成り立ち躯体や金物や仕上げなどフォルム・フェイス・ディテールをアレンジやソリッド変換してカタチ造るものです。植生は樹木や草花の生長によって表された姿形がそれに当たります。さらに双方の出来型を集約し適切配置してひとつの絵を完成させていきます。多くの設計手法があるなか特に注目すべきは2面性を持つ『L型フォーム』の使い方です。上下前後左右に変化変形させ表裏面を演じつつ多彩なL型部位を構成し立体物を描きます。全ては巧みを引き出し料理するレシピを考案する設計者次第です。外部空間設計の醍醐味は「自ら考案し具現化すること」。そのためにも卓越した能力と細部の拘りそして新しいことにチャレンジするマインドが欠かせないのです。


Concept
どんな計画であっても方向性の明確化は大切です。敷地や立地、敷地有効活用とした要望、夢の住まいを具現化する希望などを伺い方向性を見つけ出してラグジュアリー・モダン・カジュアル・シンプル・エレガントなどスタイルに合ったシーンを企画します。意匠性と並行し機能性も計画に取り入れることもプロならではのスキルです。コスト面ばかりを優先しすぎたボーダーライン以下の設計では将来性が不明確となるので対話の中から納得出来るラインを見つけ出し適切な提案を心掛けています。

Originality
この業界は先行発売の既製品を買い並べるだけと思われがちですがそれだけ外部空間をまとめることは叶いません。そのため設計者自ら考案した多彩な部位を重ね合わせて計画を行っています。ローコストといってもこだわりは欠かせません。デザイン的な面で特別なエレメントを考案することが基本のオリジナリティーですがそれ自体を配りまとめあげる空間操作もそのひとつです。隣にあるものやネットから抽出したものをオマージュすること以外にプロならではの想いの詰まったデザインも欠かせません。

I d e a
オリジナリティーを重ね合わせた計画は設計者のアイデアがあってこそ叶うものです。外構は敷地境界線上にブロックとフェンスで囲むことだけが仕事ではありません。門まわりの立体感や奥行き感、車庫干す面の意匠性や周囲環境の連動、玄関まで誘うアプローチの動きや視線の先、上空を覆う自然要素の利用法、庭空間の設など多くの物事がアイデアのものでまとめられています。他と違った印象の外部空間設計を建築と合わせ外観デザインとしてまちに貢献するためにも重要な鍵となっています。

Supplies&Arrangement
エクステリアは歩く・駐める・囲むとした機能性だけで描くものではありません。生活に密接したインテリア提案が様々な仕掛けや楽しみを演出するように必要最低限の機能に加算し装飾演出を行うことも大切な設計ポイントです。歩く途中に飾るフォーカルポイントや視線誘導のアイストップや抜け感のあるアクセントスクリーンなどを基本に壁泉や木陰やベンチなど滞在場所を提案することもそのひとつ。インパクトによる驚きとアレンジによる煌めきを組み合わせ興味を刺激するサプライズを考案します。

F o r m
エクステリア設計は現場造作が中心の設計計画です。だからこそものづくりの基本としてプロポーション・ソリッド・ホライゾンラインなど形状に関する様々なフォルムにこだわりを持ってデザインすることが大切です。縦横比率や奥行き感や表面装飾など駆使して形作り壁面や床面などを組み合わせ空間を組立てるコンビネーション、最適なレイアウトを考案しポジショニングにこだわり建築を除いた境界内の外部空間を余すことなく手掛けるために多彩な形状同士の設計と構成が重要だと考えています。

Detail
エクステリアは事前設計された造形を一点物として現場で組立てるオーダーメイド要素を主体に構成されています。その仕上がりや完成度によって品質に差が現れるためこだわりや追求が欠かせません。手に触れる高さに備わる近景要素だからこそ角部や端部の収まりや接合点や異素材の繋ぎ方などに細心の注意を払うことで美観を高めるため大切な要素です。現場で築く施工者と計画を起こす設計者のスキルと経験に委ねられビジュアルに対して同一価値観を持つチームアップが鍵になっています。

HARD-WARE
ハードウェアとは主に金物類を示します。先行発売され明確なコンセプトやスタイルを持ち門扉や車庫屋根等の主役的要素、表札やポスト等の装飾的要素まで方向性に合わせコーディネートします。昨今はハイスペック要素のセミフレキシブルタイプが発売され最終形を設計者に委ねられたパーツ化商品も展開されています。意匠性と合わせ機能性や施工性や将来性まで含めた計画が求められるため高い設計スキルを持ったデザイナーが不可欠です。

Material&Texture
マテリアルとはフィニッシュアイテムとして採用する素材を示します。現場造作が基本のエクステリアデザインにとってスタイルを表すための鍵でありテクスチャーやカラーリングを含めて完成形を表すため最適なコーディネートとピックアップするスキルが求められます。経年美化とした将来性や施工性を考慮しデザインの方向性を示す様々な素材を最適な施工で美しくまとめ上げることがプロのデザイナーに課せられた重要な仕事となっています。

Tree&Planting
ツリー&プランツとは植栽計画を示しガーデンデザインに欠かせない主役的要素ですがエクステリア設計においても重要なエレメントです。まち並み景観を意識した最適な計画を行うのであれば、落葉樹によるシンボルツリーや果実のなるセカンドツリーや花木によるサードツリーなどを組み合わせた設計手法のひとつトライアングルセッティングを活用しながら自然環境でファサード上空面を華やかに覆い誘う楽しみを癒しを操作する唯一の要素です。

Lamp&Light
ランプとは時間の経過とともに照らし出される風景の変化を楽しむナイトシーンを演じる照明計画です。明かりによって様々な空間を演出するために欠かせない要素です。昼間は器具自体の装飾性をビジュアルで楽しみ、夜間は誘い・灯り・降り注ぎなど光の反射方向や明るさなどの効果をシーンに合わせて設定しと昼夜に違った表情を写します。現在の主流となるオープンスタイル提案ではセミセキュリティーの必須要素として採用が欠かせません。

PRESENTATION
企画提案:ご依頼からお引き渡しまで
外部空間設計の流れ
エクステリア&ガーデンデザイン意匠計画提案
情報整理.現地調査.動線計画.平面図.立面図.透視図.照明計画.植栽計画等 選択式
エクステリア&ガーデン業界は建築や内装に寄り添い敷地内連動設計するからこそ同一のスキルやスペックを持ち合わせたデザイナーが不可欠です。現場で収めることが多いような図面では将来性や目的が不明確です。そのためにも事前計画としてしっかりとした基本設計図を起こすことが欠かせません。私たちは現地調査から意匠設計まで一通りのストーリー性を持って現場施工が出来る図面をご提案することを心掛けています。
・意匠設計費の目安:一面道路高低差+300程度/15万円(税別)〜 ・コンサル費の目安:ミーティング1.0hあたり / 3万円(税別)〜
*敷地条件やエリアやご要望によってご費用は異なりますので事前にご相談下さい

外部空間設計の流れ
エクステリア&ガーデンデザイン意匠計画提案
情報整理.現地調査.動線計画.平面図.立面図.透視図.照明計画.植栽計画等 選択式
エクステリア&ガーデン業界は建築や内装に寄り添い敷地内連動設計するからこそ同一のスキルやスペックを持ち合わせたデザイナーが不可欠です。現場で収めることが多いような図面では将来性や目的が不明確です。そのためにも事前計画としてしっかりとした基本設計図を起こすことが欠かせません。私たちは現地調査から意匠設計まで一通りのストーリー性を持って現場施工が出来る図面をご提案することを心掛けています。
・意匠設計費の目安:
一面道路高低差+300程度
15万円(税別)〜
・コンサル費の目安:
ミーティング1.0hあたり
3万円(税別)〜
*敷地条件やエリアやご要望によってご費用は異なりますので事前にご相談下さい

1 相 談 依 頼|Contact
建築計画と同時進行でエクステリア&ガーデン設計をご依頼下さい。敷地に対する最適化を目指しグランデザインとされる敷地内連動設計を提案する上で外構や庭の最低寸法確保に影響するため玄関や窓先などの開口部や建築配置を同時検証することで理想的な敷地有効活用法が見出せます。立地条件に応じて外観デザインや環境デザインに定めるボーダーラインを明確にすることが私たちコンサルティングの仕事です。まち並みに繋がる大切な空間だからこそ理想を提供しオーナー様の資産価値を最大に活かす総合プロデュースをお手伝いします。




▼
2. 情 報 共 有|Hearing
外部空間設計を起こすための事前準備として情報収集と共有から始めていきます。立地・環境・敷地などの土台的要素、オーナー様の生活リズムや趣味趣向や家族構成や利用目的などの人的要素、建築・内装・設備関係などの先行的要素を含めながら多くの事柄を整理した上でエクステリア計画の方向性や将来性を加味した価値観を照らし合わせながら最終的なスタイルを定めていきます。多くの情報を紐解きながら当社の強みである適切な最適化した機能性とビジュアルにこだわりを持った意匠性を掛け合わせながらヒアリングに重要な役割を持って臨みご要望に応じたデザイン考案をご提示致します。




▼
3. 企画案作成|Planning
事前共有しました様々な情報を主に敷地条件と建築計画を合わせ外部空間設計を起こします。主な資料構成はコンセプト・方向性整理・提案する形状や空間の雰囲気を伝えるポートレートでイメージしやすい資料をご準備します。その上で動線計画・平面図・立面図・透視図で敷地の有効活用や建築計画との連動やスタイルの明確化を行っていきます。必要に応じて照明計画・素材計画・植栽計画などを加え重ねながら最終的な出来形を表していきます。ひとつひとつ丁寧にこだわりを持ち最適化探求に努めていますので時間を要しますがオーナー様の価値を高める最良の外部空間設計をプロフェッショナルとして恥じない企画案を作成しております。




▼
4. 企画案解説|Presentation
デザイナースキルを最大限に発揮しオーナー様のためだけに特別に考案したエクステリア&ガーデンプランを人伝えでは苦労や熱意が半減することもあるので手掛けた設計者自ら解説します。プレゼンテーションでは紙面だけでは伝わりにくいとされる情景や空気感やその場に佇む時間の楽しみ方などストーリー性を補足説明することでより明確で臨場感を楽しんで頂けます。外部空間の形をイメージ共有したのちに実際に採用する素材や色味を手に取り図面と並べ合わせてリアリティー追求に努めています。当社は意匠設計を中心に取り組んでおりますのでその道のプロフェッショナルがお話しする想像力と熱意を共にお楽しみください。




▼
5. 設 計 受 渡|Commitment
当社から提案しました外部空間の意匠設計を解説したのち期待に応えることが出来ましたらオーナー様の資産価値を高める住まい計画となるよう最大限に努めた一通りの意匠設計図のお渡しとなります。お付き合いの建設会社様や業者様にて改めて施工図面に置き換えてそれぞれの保証内で出来る形に再編成してご活用下さい。また、当社では施工を任せられる施工業者のご紹介も承っております。場合によって当社こだわりのデザインを相違なく具体化させるため意匠設計監修のお手伝いも承っておりますので施工にお悩みの方は事前にご相談ください。




GRANFACE|PRESENTATION-STORY

PLANNING-TOOL
設計図の制作用途


SEMI.HANDWORK-PLAN
提示内容|モノトーン・オールカラー・コメント記載・アプリケーション線画
作図作業は手描きが基本です。デジタル線画の作図では表しにくいラフな印象が温かみが増すということもあるので差別化に繋がりやすいとされています。今の時代はシステム環境整備も整い私たちもアプリケーションを活用しる機会が多くなりましたがフリーハンドで描く奥行き感や線の印象などに違いが出ることや空間イメージが出来る設計者として手描きスキルを持つことは設計者として当たり前のことです。
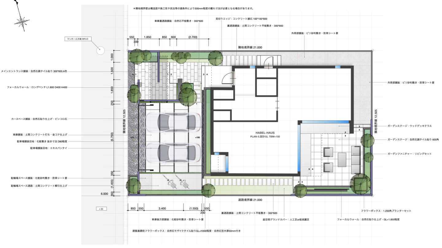
SYSTEMCAD-PLAN
提示内容|スケッチアップ・リック・オーセブン:ナイトシーン・大型物件
現在主流のデジタル線画によるCAD図面です。システム環境による作図のため操作方法を学ぶことでおおよその図面製作が行えることやマテリアルやハードウェアなど予めデータ化された便利な作図方法です。手描きに要する項目の時短や大規模計画やナイトシーンなどに欠かせません。完成度に差が現れることから現場を知りセンスやオペレーションスキルの高いブレインと共同して仕上げていくこともあります。


SYSTEMCAD-PLAN
提示内容|スケッチアップ・リック・オーセブン:ナイトシーン・大型物件
現在主流のデジタル線画によるCAD図面です。システム環境による作図のため操作方法を学ぶことでおおよその図面製作が行えることやマテリアルやハードウェアなど予めデータ化された便利な作図方法です。手描きに要する項目の時短や大規模計画やナイトシーンなどに欠かせません。完成度に差が現れることから現場を知りセンスやオペレーションスキルの高いブレインと共同して仕上げていくこともあります。

DEGITALDATE-PLAN
提出内容|パソコンソフト・デジタル枠構成図・PDF納品
CADによる作図ではデータ化されたものを組み合わせて作図しますが細部のこだわりとして寸法や割り付けなどを重視する設計を行うため枠線で組み立てることでしっかりとしたせ設計を心掛けていることからオリジナルの作業方法を持ちて作図しております。色味や素材感など独自のニュアンスで描くため手描きで感じる印象に近いことも特徴のひとつです。PCソフト線画であるためPDF限定の納品図面となります。
IDEA-RUFFSKETCH
提出内容|フォルム・プロポーション・コンビネーション・ポジショニング
イメージの具体化をラフスケッチで提案致します。エクステリア設計の要である素材に頼らず造形による基本構成を中心に思案しアイデアを描くものとなります。おおよその構成をラフで描くため卓越したスキルや実績が備わったプロフェッショナルデザイナーだから出来る提案です。施工手順や完成品質などを熟知し思考の移し替えを具体的に企画を起こすことは手描きやCADであってもプロの仕事として大切な業務過程であり無形財産として完成度追求の鍵として重要な役割を担っています。


IDEA-RUFFSKETCH
提出内容|フォルム・プロポーション・コンビネーション・ポジショニング
イメージの具体化をラフスケッチで提案致します。エクステリア設計の要である素材に頼らず造形による基本構成を中心に思案しアイデアを描くものとなります。おおよその構成をラフで描くため卓越したスキルや実績が備わったプロフェッショナルデザイナーだから出来る提案です。施工手順や完成品質などを熟知し思考の移し替えを具体的に企画を起こすことは手描きやCADであってもプロの仕事として大切な業務過程であり無形財産として完成度追求の鍵として重要な役割を担っています。